Дом для узкого участка — особенности проектирования и планировки
Чтобы выполнить привязку дома на участке нужно знать некоторые нормы СНиП, где указаны расстояния от дома до соседних участков, а так же соблюсти противопожарные разрывы.
Об этом мы подробно писали в статье о планировке участка на 6 сотках. Это легко сделать, если ширина участка значительно превышает габариты планируемого дома.
Но что делать, если доставшийся для строительства жилого или дачного дома участок очень узкий?
Выход, пожалуй, один – узкий дом. Но не стоит отчаиваться. Предлагаем обсудить данный вопрос и найти приемлемое решение вместе.
Дом для узкого участка
Сопоставив все нормы и варианты привязки дома, определяем его ширину. Дом для семьи из трех и более человек предполагает наличие нескольких жилых комнат: спален, гостиной, а так же санузла, кухни, возможно столовой и конечно подсобных помещений (котельная, гардеробная, кладовая).
Это нужно знать
Нормы СНиП 2.08.01-89* «Жилые здания» гласят:
- — площадь гостиной для комфортного проживания в квартире или доме с количеством комнат более 2-х должна быть не менее 16 кв.м;
- — площадь остальных жилых комнат, а так же кухни – не менее 7-8 кв.м;
- — ширина межкомнатных коридоров – не менее 0,85 м, а в домах с проживанием лиц с ограниченными возможностями (инвалидами) – не менее 1,15 м;
- — ширина прихожей не менее 1,4 м, а туалета – не менее 0,8 м;
Длина комнаты не должна превышать ее ширину более чем в 2 раза, иначе помещение будет слишком вытянутым и не комфортным.
Варианты планировки
Вряд ли узкий дом будет одноэтажным, на одном этаже достаточно трудно расположить все необходимые помещения, исключение составляют лишь небольшие дачные дома.

Хотя все конечно зависит от количества проживающих и наличия необходимых помещений.
Одним из вариантов узкого дома является дом, построенный из контейнеров. Ширина грузовых контейнеров не велика, грамотно скомпоновав их и продумав планировку, в результате можно получить довольно комфортабельный дом.

Определившись с количеством и составом желаемых помещений, приступаем к проектированию.
Конечно же, можно обратиться к специалисту — архитектору, который составит проект будущего дома, учтет все пожелания заказчика и поможет ему найти наиболее рациональное использование полезной площади и правильное расположение помещений.

Но вы сможете и самостоятельно выполнить планы будущего дома. Вооружившись листом бумаги (лучше миллиметровой), карандашом и линейкой, смело приступайте к планировке своего жилища.

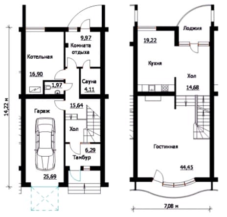
Как правило, в небольшом узком доме на первом этаже располагают гостиную, кухню, санузел, котельную, а на втором – спальные комнаты, гардероб и при необходимости дополнительный санузел.

Чтобы помещение гостиной было наиболее просторным, кухню можно расположить в нише, объединив ее с гостиной небольшой столовой зоной. Гостиную так же можно объединить с прихожей, не разделяя помещения стенами для увеличения пространства, а зонирование их выполнить с помощью разнообразных приемов, например, разным материалом пола – в прихожей плитка, а в гостиной паркет, ламинат, или разным цветом пола и стен.
На первом этаже чаще располагают небольшой санузел с душевой кабиной или вовсе без нее, а на втором более удобную и просторную ванную или раздельный санузел.

Лестница, ведущая на второй этаж, выходит в небольшой коридор, который ведет в две или более спальные комнаты. Для экономии пространства лестницу можно сделать винтовой. Лестница на второй этаж может быть устроена из гостиной и сделана на больцах. Такая конструкция раствориться в пространстве и не буде загромождать помещение.
Если габариты дома позволяют устроить гостиную со вторым светом, то есть высоту ее выполнить в два этажа, входы в спальные комнаты, объединенные коридором в виде антресоли, будут просматриваться из гостиной. В этом случае гостиная станет центральным ядром дома, где будет протекать жизнь семьи, столовая и зона приготовления пищи так же будут являться ее частью.
Такой вариант подойдет дружной семье, с общими интересами и совместным времяпровождением. В данном случае второй этаж можно сделать мансардным. Большая просторная комната в небольшом доме – лучшее решение. Здесь семья проводит больше времени, а спальные комнаты, как правило, используются в ночное время или для кратковременного уединения.

На узком участке часто не находится места для строительства гаража, а эта постройка вам необходима. В этом случае гараж располагается в первом или цокольном этаже, а все жилые помещения находятся на втором и мансардном этажах.

На одном с гаражом уровне можно спланировать котельную, прихожую с лестницей, ведущей в жилые комнаты, а так же необходимые подсобные помещения (гардероб, постирочную, кладовую, мастерскую, сауну). Дом увеличивается в высоту до трех этажей и имеет все необходимые помещения.
Вход в тамбур организуйте с бокового фасада. Прихожая, расположенная у одного из боковых фасадов, даст возможность использовать всю ширину дома для расположения комнат, их величина будет максимально возможной. Помещения станут наиболее просторными и комфортными.
Знаменитые узкие дома
Пожалуй, самые известные узкие дома – это дома, построенные японскими архитекторами. Дефицит площади земельных участков, а зачастую небольшие незастроенные участки, казалось бы, не пригодные для строительства, заставляют японских зодчих создавать фантастические жилые объекты.

На первый взгляд такой дом совершенно не пригоден для жизни. Но это только на первый взгляд. Изучив планировку, вы поймете, что и в таком доме можно проживать с комфортом.

И помните, безвыходных ситуаций нет, нужно просто более творчески подойти к данному вопросу, и все получится. Даже самый узкий участок может стать самым красивым в окрестности, а небольшой дом не будет менее просторным и комфортным.



