Как сделать козлы для распиловки дров своими руками?
Каждый, кто сталкивался с резкой дров, наверняка убедился в том, что делать эту работу «на коленке» очень неудобно и долго. Наши прадеды оставили в наследство очень удобное приспособление, получившее название «козлы» с ударением на первом слоге.
На западе этот простой дровопильный станок также хорошо известен, но его там прозвали «конем».
Для того, чтобы самому сделать козлы, нужно заранее продумать их конструкцию и сделать эскиз или чертеж. В этом случае сборка пройдет быстрее и не потребует исправления ошибок во время работы.
Кроме привычного варианта из деревянного бруса, сегодня можно найти очень интересные разборно-сборные конструкции металлических козел, которые специально адаптированы под работу электрической или бензопилой.
Урок эргономики
Сделать козлы для дров своими руками так, чтобы они были легкие, устойчивые и удобные в работе несложно. Для этого необходимо точно подобрать габариты этой конструкции под свой рост, а также учесть вид инструмента, используемого для распиливания.
Для того, чтобы процесс пилки занимал минимум времени, дрова должны находиться на высоте, не требующей от человека приседания или большого наклона корпуса. Лучше всего, когда рабочая высота резки составляет от 90 см до 110 см. На таком уровне можно, не сгибая спины, быстро и удобно пилить дрова.
Пиление дров двуручной пилой требует упора для свободной руки. В таком станке им является разрезаемая лесина, установленная в козлы. При использовании бензопилы упор не нужен, поскольку обе руки держат инструмент. Здесь гораздо важнее сделать такую конструкцию, которая бы позволяла максимально выдвинуть за пределы станка один конец лесины (бревна). В этом случае не будет риска зажима бензопилы, неизбежного при резке дров между стойками козел.

Козлы для пилки дров двуручной пилой должны отвечать двум главным требованиям: устойчивость и прочность. Дело в том, что процесс ручной резки сопровождается попеременными сдвигающими усилиями, которые расшатывают станок и могут вызвать его опрокидывание. Поэтому Х-образные стойки, скрепленные между собой продольным брусом или металлической затяжкой, должны быть изготовлены из качественной древесины толщиной не менее 100 мм.
Ширина нижней опорной части стоек должна быть немного больше (на 10-15см) расстояния от земли до верха стяжного бруса. Кроме продольной стяжки, соединяющей опорные крестовины, ноги деревянного станка следует укрепить обвязочным бруском для повышения жесткости всей конструкции.
Распилка дров может выполняться и на металлических козлах. По сравнению с деревянными, они менее громоздкие и прослужат не один десяток лет. Для их изготовления потребуется уголок или профильная труба с размерами сторон не менее 50 мм. Если для вас важна мобильность, то крестовины и крепление продольного профиля к ним нужно делать не на сварке, а на болтовых соединениях.
Если заниматься изготовлением станка нет времени и желания, а на дворе лежит гора непиленых дров, купите готовую конструкцию. Цена разборных металлических станков для пилки дров находится в диапазоне от 1800 до 5500 рублей, а их модельный ряд весьма широк и разнообразен.

При выборе обратите внимание на устойчивость рамы и качество профиля. Если станок легко шатается от действия руки и его разработчики сэкономили на каждом грамме металла, ищите более надежный вариант.
Бензопила любит «свободный конец»
Невысокие цены и большой выбор бензопил сделали этот инструмент основным для пилки дров, поэтому под него сегодня умельцы разрабатывают собственные оригинальные конструкции козел. Производительность и легкость резки древесины бензиновым и электрическим инструментом в десятки раз выше традиционной механического распиливания.

Козлы для пилки дров механизированным инструментом можно сделать по классической схеме – две симметричные Х-образные стойки с поперечиной. Однако, в этом случае высока вероятность зажима цепной пилы в момент завершения реза. Этот момент нельзя назвать приятным и безопасным при работе скоростной пилой.
Для исключения заклинивания бревно каждый раз приходится поворачивать резом вниз и только тогда заканчивать распиливание. Намного удобнее и безопаснее, особенно для новичка-дровосека, резать свободный конец бревна, выступающий из козел наружу.
Поэтому следует отдать предпочтение металлическим конструкциям, позволяющим максимально выдвинуть бревно в одну сторону, надежно зажав его второй конец при помощи зубчатых захватов или стальной цепи.
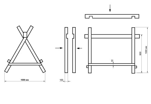
Делаем козлы для дров своими руками
Рассмотрим самый простой вариант конструкции, сделать которую по силам любому мужчине, умеющему держать в руках электролобзик и шуруповерт.
Сначала нарежем деревянный брусок по размерам чертежа. Для стоек и поперечной затяжки потребуется брус размером 100х100 мм или 50х100 мм, а для обвязки ножек хватит сечения 50х50 мм.
Самодельные козлы начнем собирать со стоек. Для этого в брусках крестовины в месте их соединения вырезаем пазы для более плотного сплачивания, после чего накладываем стойки друг на друга и фиксируем тремя длинными саморезами (75 мм).

В стяжном брусе также делаем два небольших выреза и плотно набиваем его на собранные стойки. Нижнюю часть ножек нашего станка закрепляем на саморезах обвязочными брусками.
Металлическая конструкция делается аналогично, за исключением вырезания пазов в профиле для плотного соединения элементов каркаса. На продольном уголке или трубе, скрепляющей стойки в этом случае можно закрепить деревянный брусок для предохранения зубьев пилы от контакта с металлом.



